Suur tööstuslik 6,6 kv Ht mootor
Kirjeldus
Tehnilised parameetrid
Lühitutvustus
- Suure-võimsusega ja suure pöördemomendiga 6,6 KV elektrimootorite kasutamine rasketööstuses hõlmab kaevandust, metallurgiat, energeetikat, laevu ja muid stsenaariume. Selle kõrge töökindlus ja tugev kohanemisvõime muudavad selle võtmeseadmete juhtimiseks põhijõuallikaks.
- Kaevandus- ja metallurgiatööstuses on laialdasemalt levinud suurte, suure pöördemomendiga 6,6 KV mootorite (nt purustid, kuulveskid, kaevandustõstukid, lintkonveierid jne) kasutamine. Need koormusseadmed vajavad suurt käivitusmomenti, et tulla toime raskete koormustega, nagu maagi purustamine ja jahvatamine, kuid samas on vaja ka pikaajalist töötamist{{2}.
- Näiteks maagi jahvatamisel kuulveskis peab elektrimootor tagama jahvatusefektiivsuse säilitamiseks stabiilse pöördemomendi.
- Näiteks metallurgiatööstuses nõuavad sagedast käivitusseiskamist ja dünaamilist koormuse reguleerimist ka terasvaltsimistehased, pidevvalumasinad, kõrgahjupuhurid jne. 6,6 KV mootorite kõrge efektiivsus ja kiire reageerimisomadused vastavad valtsimise, sulatamise ja muude protsesside nõuetele.
Kliendid esitavad sageli andmeid, mis nõuavad, et mootor oleks muutuva sagedusega mootor.
Niisiis, millised on erinevused ja sarnasused muutuva sagedusega mootorite ja fikseeritud sagedusega mootorite vahel?
|
Ei. |
seeria |
YPKK |
YKK |
|
Muutuva sagedusega tüüp |
fikseeritud sagedusega tüüp |
||
|
1 |
Oravapuuri mootor |
jah |
jah |
|
2 |
Struktuur |
Kast-tüüp, terasplaadid keevitatud |
Kast-tüüp, terasplaadid keevitatud |
|
3 |
Jahutusmeetod |
IC616/IC666 |
IC611 |
|
4 |
Jahutusfunktsioon |
Üleval paigaldatud{0}}õhujahuti ja sundventilatsioonimootoriga |
Üleval paigaldatud{0}}õhujahutiga |
|
5 |
Kaitseklass |
IP54/IP55 |
IP54/IP55 |
|
6 |
Isolatsioon |
F |
F |
|
7 |
Paigaldamine |
IM1001 |
IM1001 |
|
8 |
Pinge |
3kV,3,3kV,6kV,6,6kV,10kV,11kV jne. |
3kV,3,3kV,6kV,6,6kV,10kV,11kV jne. |
|
9 |
Ühendus |
Y |
Y |
|
10 |
Sagedus |
Vahemik 15–75 Hz (fikseeritud 50 Hz/60 Hz) |
Fikseeritud 50Hz/60Hz |





Suur tööstuslik 6,6 kv ht mootor vähendab voolukadu, vähendades voolu, ja sobib kaug-jõuülekande stsenaariumide jaoks (nt sügavad kaevandused). Samal ajal toetab selle keritud rootori konstruktsioon välise impedantsiga käivitamist, vähendades mõju elektrivõrgule.
Valimisel tuleb valida kaitsetase (IP44/IP56), jahutusmeetod (IC611/IC616) ja isolatsioonitase (F/H tase) lähtudes koormuse omadustest (nt käivitussageduse ja pöördemomendi nõuded) ning energiasäästu saavutamiseks kohaneda muutuva sageduse juhtimisega.
Üksikasjalikud jõudlusandmed

|
Iseloomulikud tähed |
Esimene number |
Teine number |
|
IP |
5 |
5 |
|
1. number |
Lühikirjeldus |
|
|
2 |
Against solid objects>12 mm |
|
|
4 |
Against solid objects>1 mm |
|
|
5 |
Tolmu-kaitsega |
|
|
6 |
Tolmukindel- |
|
|
2. number |
Lühikirjeldus |
|
|
3 |
Vee pritsimise vastu |
|
|
4 |
Veepritsmete vastu |
|
|
5 |
Veejugade vastu |
|
|
6 |
Raske mere vastu |
|
|
|
Väline ventilaator |
|
|
|
|
|
||
|
355 |
|
|
|
|
400 |
|||
|
450 |
|||
|
500 |
|||
|
560 |
|||
|
EI. |
Raam |
Laager |
|
1 |
H315-H450 |
Veerelaagrid, määrdega määrimine |
|
2 |
H500-H6302P |
Veerelaagrid, määrdega määrimine |
|
3 |
H500-H6304P~12P |
Liuglaagrid, sundmäärimine |
| Horisontaalne võll: | |||||
![]() ![]() |
|||||
| IM B3 | IMB5 | IM B6 | IMB7 | IM B8 | IM B14 |
| IM 1001 | IM 3001 | IM 1051 | IM 1061 | IM 1071 | IM 3601 |
| jalale paigaldatud | äärik DE-s | jalaseinale kinnitatud | jalaga seinale kinnitatud | lakke paigaldatud | nägu DE-s |
| jalgu pole | jalad vasakul{0}} | eet paremal{0}} | jalgadega | jalgu pole | |
| DE-st vaadatuna | DE-st vaadatuna | mootori kohal | |||
| Vertikaalne võll | |||||
![]() |
|||||
| IMV1 | IMV3 | IMV5 | IMV6 | IMV18 | IMV19 |
| IM 3011 | IM 3031 | IM 1011 | IM 1031 | IM 3611 | IM 3631 |
| äärik DE-s | äärik DE-s | vertikaalne jalg | vertikaalne jalg | nägu DE-s | nägu DE-s |
| võll alla | võll üles | hästi paigaldatud | seinale kinnitatud | võll alla | võll üles |
| jalgu pole | jalgu pole | võll alla | võll üles | jalgu pole | jalgu pole |
|
YKK (700-1000) seeria kõrgepingemootori spetsifikatsioonid, 10KV |
|||||||||||
|
Mudel |
100% koormus |
Ist |
Tst |
Tmax. |
Inertsmoment (kg · m²) |
Kaal (kg) |
|||||
|
Võimsus |
Praegune |
Kiirus |
Eff. |
P.F. |
sisse |
Tn |
Tn |
Mootor |
Laadige |
||
|
YKK710-4 |
Võimsus |
Praegune |
Kiirus |
Eff. |
P.F. |
sisse |
Tn |
Tn |
Mootor |
Laadige |
|
|
2000 |
138 |
1488 |
95.9 |
0.87 |
6.5 |
0.5 |
1.8 |
120 |
498 |
13400 |
|
|
2240 |
155 |
1489 |
95.9 |
0.87 |
6.5 |
0.5 |
1.8 |
140 |
551 |
14200 |
|
|
2500 |
173 |
1489 |
96.0 |
0.87 |
6.5 |
0.5 |
1.8 |
150 |
621 |
15000 |
|
|
2800 |
193 |
1488 |
96.1 |
0.87 |
6.5 |
0.5 |
1.8 |
160 |
705 |
15800 |
|
|
YKK800-4 |
3150 |
218 |
1486 |
95.8 |
0.87 |
6.5 |
0.5 |
1.8 |
210 |
766 |
22000 |
|
3550 |
246 |
1488 |
95.9 |
0.87 |
6.5 |
0.5 |
1.8 |
240 |
857 |
23000 |
|
|
4000 |
273 |
1488 |
96.0 |
0.88 |
6.5 |
0.5 |
1.8 |
260 |
976 |
24000 |
|
|
4500 |
307 |
1486 |
96.1 |
0.88 |
6.5 |
0.5 |
1.8 |
280 |
1114 |
25000 |
|
|
YKK900-4 |
5000 |
345 |
1486 |
96.2 |
0.87 |
6.5 |
0.5 |
1.8 |
310 |
1239 |
26000 |
|
5600 |
386 |
1488 |
96.3 |
0.87 |
6.5 |
0.5 |
1.8 |
390 |
1340 |
27000 |
|
|
6300 |
429 |
1488 |
96.4 |
0.88 |
6.5 |
0.5 |
1.8 |
460 |
1486 |
28000 |
|
|
YKK1000-4 |
7100 |
483 |
1488 |
96.5 |
0.88 |
6.5 |
0.5 |
1.8 |
500 |
1693 |
32000 |
|
8000 |
543 |
1488 |
96.6 |
0.88 |
6.5 |
0.5 |
1.8 |
560 |
1911 |
34000 |
|
|
YKK710-6 |
1600 |
116 |
995 |
95.2 |
0.84 |
6.5 |
0.8 |
1.8 |
170 |
1598 |
13400 |
|
1800 |
130 |
995 |
95.5 |
0.84 |
6.5 |
0.8 |
1.8 |
190 |
1800 |
14200 |
|
|
2000 |
144 |
994 |
95.6 |
0.84 |
6.5 |
0.8 |
1.8 |
210 |
2005 |
15000 |
|
|
YKK800-6 |
2240 |
161 |
995 |
95.7 |
0.84 |
6.5 |
0.8 |
1.8 |
310 |
2166 |
22000 |
|
2500 |
179 |
995 |
95.8 |
0.84 |
6.5 |
0.8 |
1.8 |
340 |
2423 |
23000 |
|
|
2800 |
201 |
994 |
95.9 |
0.84 |
6.5 |
0.8 |
1.8 |
380 |
2721 |
24000 |
|
|
YKK900-6 |
3150 |
225 |
995 |
96.1 |
0.84 |
6.5 |
0.8 |
1.8 |
460 |
3022 |
26000 |
|
3550 |
254 |
995 |
96.1 |
0.84 |
6.5 |
0.8 |
1.8 |
510 |
3414 |
27000 |
|
|
4000 |
283 |
994 |
96.1 |
0.85 |
6.5 |
0.8 |
1.8 |
610 |
3820 |
28000 |
|
|
4500 |
318 |
994 |
96.2 |
0.85 |
6.5 |
0.8 |
1.8 |
660 |
4324 |
29000 |
|
|
YKK1000-6 |
5000 |
349 |
994 |
96.3 |
0.86 |
6.5 |
0.8 |
1.8 |
960 |
3193 |
32000 |
|
5600 |
390 |
994 |
96.4 |
0.86 |
6.5 |
0.8 |
1.8 |
1060 |
3592 |
34000 |
|
|
6300 |
438 |
994 |
96.5 |
0.86 |
6.5 |
0.8 |
1.8 |
1160 |
4073 |
36000 |
|
|
YKK710-8 |
1120 |
84 |
746 |
94.5 |
0.81 |
6.5 |
0.6 |
1.8 |
190 |
1462 |
13400 |
|
1250 |
94 |
745 |
94.7 |
0.81 |
6.5 |
0.6 |
1.8 |
200 |
1648 |
14200 |
|
|
1400 |
104 |
745 |
94.9 |
0.82 |
6.5 |
0.6 |
1.8 |
220 |
1850 |
15000 |
|
|
YKK800-8 |
1600 |
118 |
746 |
95.1 |
0.82 |
6.5 |
0.6 |
1.8 |
330 |
2030 |
22000 |
|
1800 |
133 |
745 |
95.1 |
0.82 |
6.5 |
0.6 |
1.8 |
360 |
2302 |
23000 |
|
|
2000 |
148 |
745 |
95.2 |
0.82 |
6.5 |
0.6 |
1.8 |
400 |
2557 |
24000 |
|
|
2240 |
166 |
745 |
95.2 |
0.82 |
6.5 |
0.6 |
1.8 |
440 |
2872 |
25000 |
|
|
YKK900-8 |
2500 |
182 |
745 |
95.3 |
0.83 |
6.0 |
0.6 |
1.8 |
860 |
2837 |
26000 |
|
2800 |
202 |
745 |
95.4 |
0.84 |
6.0 |
0.6 |
1.8 |
960 |
3180 |
27000 |
|
|
YKK1000-8 |
3150 |
226 |
746 |
95.6 |
0.84 |
6.5 |
0.6 |
1.8 |
1260 |
3385 |
32000 |
|
3550 |
255 |
746 |
95.6 |
0.84 |
6.5 |
0.6 |
1.8 |
12460 |
3775 |
34000 |
|
|
4000 |
288 |
746 |
95.6 |
0.84 |
6.5 |
0.6 |
1.8 |
1630 |
4269 |
36000 |
|
|
YKK710-10 |
1000 |
76 |
596 |
94.6 |
0.80 |
6.0 |
0.6 |
1.8 |
360 |
1950 |
13400 |
|
1120 |
84 |
595 |
94.6 |
0.81 |
6.0 |
0.6 |
1.8 |
410 |
2186 |
14200 |
|
|
1250 |
94 |
595 |
94.6 |
0.81 |
6.0 |
0.6 |
1.8 |
460 |
2438 |
15000 |
|
|
YKK800-10 |
1400 |
105 |
595 |
94.7 |
0.81 |
6.0 |
0.6 |
1.8 |
600 |
2645 |
22000 |
|
1600 |
119 |
596 |
94.7 |
0.82 |
6.0 |
0.6 |
1.8 |
660 |
3037 |
23000 |
|
|
1800 |
134 |
595 |
94.8 |
0.82 |
6.0 |
0.6 |
1.8 |
740 |
3433 |
24000 |
|
|
YKK900-10 |
2000 |
148 |
596 |
95.0 |
0.82 |
6.0 |
0.6 |
1.8 |
1130 |
3491 |
26000 |
|
2240 |
166 |
596 |
95.1 |
0.82 |
6.0 |
0.6 |
1.8 |
1180 |
3995 |
27000 |
|
|
1000-10 YKK |
2500 |
182 |
597 |
95.3 |
0.83 |
6.0 |
0.6 |
1.8 |
1350 |
4407 |
32000 |
|
2800 |
204 |
597 |
95.4 |
0.83 |
6.0 |
0.6 |
1.8 |
1450 |
4998 |
34000 |
|
|
YKK710-12 |
710 |
58 |
497 |
94.0 |
0.75 |
6.0 |
0.6 |
1.8 |
360 |
1999 |
13400 |
|
800 |
64 |
496 |
94.2 |
0.77 |
6.0 |
0.6 |
1.8 |
390 |
2279 |
14200 |
|
YKK1000-12 |
2240 |
171 |
497 |
94.6 |
0.80 |
6.0 |
0.6 |
1.8 |
1700 |
5743 |
34000 |
|
2500 |
188 |
497 |
94.8 |
0.81 |
6.0 |
0.6 |
1.8 |
1850 |
6456 |
36000 |
|
|
2800 |
211 |
497 |
94.8 |
0.81 |
6.0 |
0.6 |
1.8 |
2000 |
7303 |
38000 |
|
|
YKK710-16 |
450 |
39 |
371 |
92.8 |
0.72 |
6.0 |
0.6 |
1.8 |
430 |
2253 |
13400 |
|
500 |
43 |
371 |
92.8 |
0.72 |
6.0 |
0.6 |
1.8 |
480 |
2501 |
14200 |
|
|
560 |
48 |
372 |
92.8 |
0.72 |
6.0 |
0.6 |
1.8 |
530 |
2791 |
15000 |
|
|
630 |
54 |
372 |
92.8 |
0.72 |
6.0 |
0.6 |
1.8 |
580 |
3156 |
15800 |
|
|
YKK800-16 |
710 |
60 |
371 |
93.1 |
0.73 |
6.0 |
0.6 |
1.8 |
700 |
3533 |
22000 |
|
800 |
68 |
372 |
93.2 |
0.73 |
6.0 |
0.6 |
1.8 |
760 |
3984 |
23000 |
|
|
900 |
76 |
372 |
93.2 |
0.73 |
6.0 |
0.6 |
1.8 |
810 |
4528 |
24000 |
|
|
1000 |
85 |
372 |
93.4 |
0.73 |
6.0 |
0.6 |
1.8 |
870 |
5061 |
25000 |
|
|
YKK900-16 |
1120 |
95 |
371 |
93.5 |
0.73 |
6.0 |
0.6 |
1.8 |
1060 |
5618 |
26000 |
|
1250 |
106 |
372 |
93.6 |
0.73 |
6.0 |
0.6 |
1.8 |
1190 |
6223 |
27000 |
|
|
1400 |
118 |
372 |
93.7 |
0.73 |
6.0 |
0.6 |
1.8 |
1330 |
6973 |
28000 |
|
|
1000-16 YKK |
1600 |
133 |
372 |
94.0 |
0.74 |
6.0 |
0.6 |
1.8 |
1880 |
7609 |
32000 |
|
1800 |
149 |
372 |
94.1 |
0.74 |
6.0 |
0.6 |
1.8 |
2080 |
8595 |
34000 |
|
|
2000 |
166 |
372 |
94.2 |
0.74 |
6.0 |
0.6 |
1.8 |
2330 |
9531 |
36000 |
|
|
2240 |
186 |
372 |
94.2 |
0.74 |
6.0 |
0.6 |
1.8 |
2580 |
10705 |
38000 |
|
|
||||||||||||||||
![]() |
||||||||||||||||
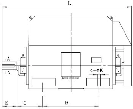
|
Raam nr. |
paigalduse mõõtmed |
Välismõõtmed |
||||||||||||||
|
A |
B |
C |
D |
E |
F |
G |
H |
K |
AC |
AD |
AD1 |
AF |
HD |
BF |
L |
|
|
710 |
1400 |
1800 |
530 |
200 |
350 |
45 |
185 |
710 |
56 |
1980 |
1270 |
1270 |
1600 |
2330 |
2400 |
3500 |
|
800 |
1600 |
2000 |
530 |
220 |
350 |
50 |
203 |
800 |
56 |
2300 |
1390 |
i1390 |
i1860 |
2550 |
2600 |
3900 |
|
900 |
1800 |
2240 |
600 |
250 |
410 |
56 |
230 |
900 |
66 |
2500 |
1490 |
1490 |
2060 |
2900 |
2880 |
4000 |
|
1000 |
2000 |
2500 |
600 |
280 |
470 |
63 |
260 |
1000 |
66 |
3460 |
1590 |
1590 |
2250 |
3150 |
3140 |
4800 |
Tehnilised andmed
Kolm{0}}faasi,
- Nimisagedus: 50/60 Hz
- Pinge: 400V, 3300V, 4160V ~ 11000 V
- Nimivõimsus: kuni 12500 kW
- Postide arv: 2,4,6,8,10,12
- Raami suurus: 350-1000 mm
- Valatud alumiiniumist oravapuur rootori jaoks
- Kaitseaste: IP54/IP55 (täielikult suletud)
- Pidev töö: S1
- Isolatsioon: F klassi (120ºC) temperatuuritõusuga
- Termokaitsega PT100 (3-juhtmeline)
- Rull-laagrid maksimaalse kandevõime tagamiseks
- Muud valikulised funktsioonid klientide nõudmisel
Tellimusteade
Liuglaagritega elektrimootorite välisõhu temperatuur ei tohiks olla madalam kui 0 kraadi. C
Õhkvesijahutit kasutavate elektrimootorite välisõhu temperatuur ei tohiks olla madalam kui 0 kraadi. C. Õhk-vesijahutitega mootorite puhul ei tohi jahutusvee temperatuur jahuti sisselaskeava juures ületada +25 kraadi C (vastavalt Hiina looduskeskkonnale, kui tingimust Mitte üle 25 °C ei ole võimalik täita, ei tohi maksimaalne jahutusvee temperatuur ületada +33 °C) ega olla madalam kui {{10} kraadi.
Märkus: kui keskkonnatemperatuurile ja kõrgusele on kehtestatud erinõuded, siis palun märkige need enne tellimuse esitamist.
Mootori käivitamisel koormusega tuleb tagada, et klemmi pinge mootori käivitamise ajal ei oleks väiksem kui 85% nimipingest.
Mootoril on lubatud käivituda pidevalt kaks korda tegelikus külmas olekus või üks kord kuumas olekus. Mootor peaks loomulikult peatuma kahe käivitamise vahel ja täiendavad taaskäivitused tuleks läbi viia pärast seda, kui mootor on täielikult jahtunud toatemperatuurini.
Märkus: kui koormaks on kolbkompressor, suure inertsiga ventilatsiooniventilaator või purusti, märkige see enne paigaldamist
tellida.
Märkus. Elektrimootorit ja käitatavat koormust tuleks juhtida ko{0}}aksiaalselt läbi siduri. Kui ülekandemeetodiks on rihm, kett, käik vms, täpsustage see enne tellimuse esitamist.
tunnistus



Kuum tags: suur tööstuslik 6,6kv ht mootor, Hiina suurte tööstuslike 6,6kv ht mootorite tootjad, tarnijad, tehas
Küsi pakkumist















